Do you want us to contact you?

CONTACT INFORMATION

+34 971 533 323

pollensa@kensington-international.com

Philip Newman 17, 07460 - Pollensa
Mallorca - Balearic Islands - Spain

Plot with project and licence for two 3-bedroom luxury villas in Crestatx, Mallorca
Plot with project and licence for two 3-bedroom luxury villas in Crestatx, Mallorca
Plot with project and licence for two 3-bedroom luxury villas in Crestatx, Mallorca
Plot with project and licence for two 3-bedroom luxury villas in Crestatx, Mallorca
Plot with project and licence for two 3-bedroom luxury villas in Crestatx, Mallorca
Plot with project and licence for two 3-bedroom luxury villas in Crestatx, Mallorca
Plot with project and licence for two 3-bedroom luxury villas in Crestatx, Mallorca
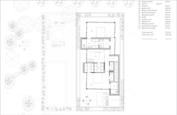
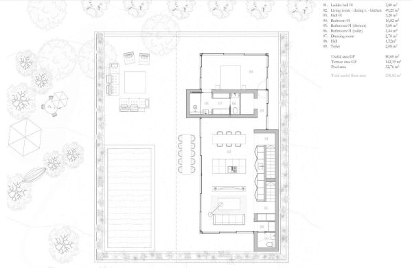
This plot, spanning 1,835 square meters in Son Toni, comes with a project and licence for two 258-square-meter, 3-bedroom villas complete with swimming pools and underground garages. The option to buy just one of the plots is also available. The estimated building cost is €700,000.

The houses will boast a design that blends contrasting materials such as sandstone, concrete, glass, wood and steel. Abundant windows will flood the interiors with natural light, seamlessly merging indoor and outdoor living spaces. The exterior will reflect the local landscape, incorporating pines, oaks, and wild shrubs like rosemary.

On the ground floor, an open-plan layout will comprise the day area, housing the living room, kitchen, and dining room, alongside a guest toilet and a bedroom with an en-suite bathroom and dressing room. The pool and a large terrace complete this floor. Upstairs, there will be two spacious en-suite bedrooms with walk-in wardrobes and private terraces, alongside an office, laundry room, and guest toilet.

The project emphasizes high-quality materials and amenities, including a dual heat pump for both cooling and heating, an air renewal system, water filtration and osmosis, a lift, and solar panels for sustainable energy generation.

This investment project prioritizes sustainability, comfort, modern Mediterranean design, and cutting-edge technology, all situated in one of the most desirable urbanizations in northern Mallorca.


About Kensington International Mallorca North: Integrity, transparency, fairness, and excellence form the basis of our daily working lives. They are the foundation on which we have built our successful real estate business on the island of Mallorca over the last years. Get to know us and experience for yourself what we can do for you.

Features


Property plans

Location

Crestatx is located in the middle of nature between Pollensa and Sa Pobla in the north-east of Mallorca.

This quiet residential area is particularly popular because of its strategic location with very good connections to Palma, Pollenca, Alcúdia and Sa Pobla.
Other advantages are the proximity to the Pollensa Golf Club and many beautiful beaches.

Sa Pobla town is known for its annual International Jazz Festival and the popular traditional San Antoni Festival with fires and devils. The village square with its bars and restaurants invites you to linger and observe Mallorcan life.
An absolute plus is the proximity to the International School.

Request more information



Energy certificate: En proceso

You may also be interested in these properties

Google reviews from our clients


mallorca luxury property