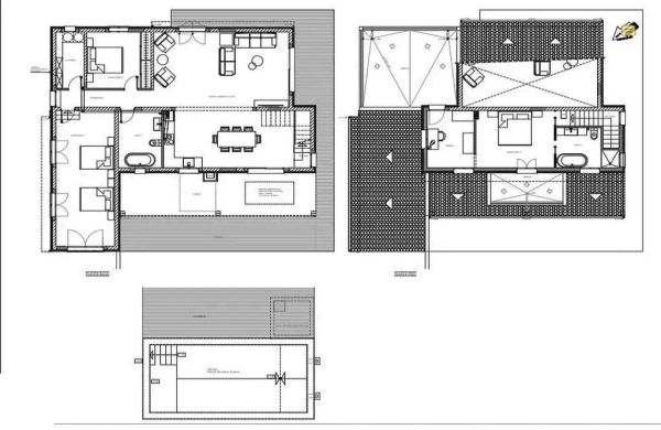
Finca rústica con proyecto de construcción aprobado cerca de la playa En una extensa parcela de unos 22.587 m², esta finca representa una oportunidad excepcional para llevar a cabo un proyecto residencial único en una de las zonas más cotizadas de Mallorca. Actualmente, en el terreno se encuentra una antigua casa de campo que, según el plan urbanístico vigente, puede ser renovada o demolida, ya que ambas opciones están contempladas dentro del proceso de licencia de obra ya en curso. El proyecto prevé la construcción de una vivienda de aproximadamente 213 m² de superficie habitable, complementada con una piscina de 35 m². La licencia se encuentra en su fase final de aprobación, con la resolución definitiva prevista en breve.
Planos propiedad

Localización
Muro es un municipio del interior situado en el centro norte de Mallorca.
Se encuentra a 11 km de la bahía de Alcudia, a 11 km de Can Picafort y a 15 km de Playa de Muro. En sus alrededores se encuentran los municipios de Sa Pobla, Santa Margalida, Can Picafort y Alcudia. La localidad de Playa de Muro se encuentra en el término municipal de Muro. La población aproximada de todo el municipio es de 7.000 habitantes.
En el centro del pueblo encontramos la plaza del Conde d'Empúries, la iglesia mayor, el ayuntamiento y numerosas calles peatonales. Es la zona del pueblo con más comercios, bares y restaurantes, y donde se celebran el mercado semanal y las fiestas populares.