Parcela exclusiva en venta en el corazón de Muro, a solo minutos de las impresionantes playas del norte de Mallorca. Esta parcela de 207m² se encuentra en una zona tranquila pero céntrica, a poca distancia de encantadoras tiendas, cafés y todos los servicios esenciales.
Con un proyecto y licencia de construcción aprobados, tienes la oportunidad de crear una villa de lujo de 280m² diseñada para el máximo confort y estilo. El proyecto incluye tres amplios dormitorios, cada uno con su baño en suite, un aseo de invitados, piscina privada, un hermoso jardín, una gran terraza soleada, garaje y espacio para bicicletas.
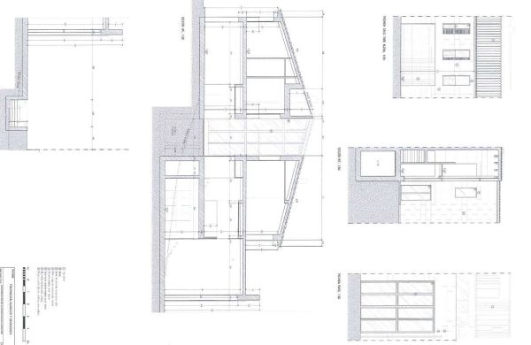
El plan arquitectónico completo se compartirá con los interesados, brindando una visión clara de esta magnífica propiedad.
Esta es una oportunidad única para construir la casa mediterránea de tus sueños en una ubicación privilegiada, combinando tranquilidad, comodidad y fácil acceso a la espectacular costa mallorquina
Planos propiedad

Localización
Ubicado en la pintoresca región norte de Mallorca, Muro es un encantador pueblo antiguo que refleja la auténtica esencia de la vida balear. Con sus calles empedradas, casas de piedra históricas y mercados tradicionales, Muro ofrece un ambiente tranquilo pero vibrante, perfecto para quienes buscan un hogar con carácter y encanto.
El pueblo cuenta con un rico patrimonio cultural, destacando su impresionante iglesia del siglo XVII, tiendas de artesanía local y acogedoras cafeterías donde se pueden degustar las mejores delicias de la isla. Rodeado de un paisaje natural impresionante y a pocos minutos en coche de la espectacular Playa de Muro, una de las más hermosas de Mallorca, este lugar combina a la perfección tranquilidad y belleza costera.
Aquí la vida transcurre a un ritmo relajado, pero con todas las comodidades modernas al alcance, incluyendo restaurantes, boutiques y excelentes conexiones de transporte. Ya sea que sueñes con una casa tradicional o una villa moderna con vistas panorámicas, Muro es el lugar ideal para invertir en tu hogar mediterráneo perfecto.
Con su combinación de historia, naturaleza y encanto isleño, Muro no es solo un lugar para vivir, sino un estilo de vida esperando a ser disfrutado